愛知県名古屋市北区 /1970年(築55年 / 1365.9㎡ (126.41万円/坪)
| No | 125 | ||
|---|---|---|---|
| 物件名 | 中杉ビル(一棟ビル 名鉄瀬戸線『東大手』駅 徒歩7分) | ||
| 所在地 | 愛知県名古屋市北区 | ||
| 沿線交通 |
名鉄瀬戸線 東大手 (徒歩7分)
名鉄瀬戸線 清水 (徒歩8分)
名古屋市営地下鉄名城線 名城公園 (徒歩7分)
|
||
| 販売価格 | 15,000万円 | 想定利回り | - |
| 物件種別 | 一棟マンション | 想定年間収入 | - |
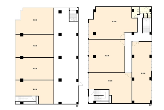
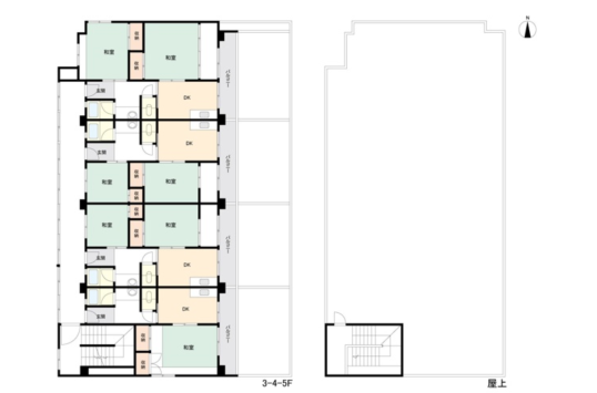
| 建物構造 | RC造 | 稼働状態 | 空室あり |
| 建物階数 | 陸屋根5階建 | 築年数 | 1970年 (築55年) |
| 総戸数 | 住居12戸+店舗8戸 | 建物面積 | 1,365.90 ㎡ (約 413 坪) |
| 設備 | 公営水道 公共下水 中部電力 都市ガス 駐車場無 |
坪単価(建物) | 36.3万円 / 坪 |
| 建ぺい率 | 80% | 土地面積 | 392.28 ㎡ (約 119 坪) |
| 容積率 | 300% | 坪単価(土地) | 126.41万円 / 坪 |
| 都市計画区域 | 市街化区域 | 土地権利 | 所有権 |
| 用途地域 | 近隣商業地域 | 取引様態 | 仲介 |
| 接道状況 | - | ||
| 再建築 | 可能 | ||
| 情報更新日 | 2025/11/29 | 次回更新予定日 | 2025/12/29 |
| No | 125 |
|---|---|
| 物件名 | 中杉ビル(一棟ビル 名鉄瀬戸線『東大手』駅 徒歩7分) |
| 所在地 | 愛知県名古屋市北区 |
| 沿線交通 |
名鉄瀬戸線 東大手 (徒歩7分)
名鉄瀬戸線 清水 (徒歩8分)
名古屋市営地下鉄名城線 名城公園 (徒歩7分)
|
| 販売価格 | 15,000万円 |
| 想定利回り | - |
| 想定年間収入 | - |
| 物件種別 | 一棟マンション |
| 建物構造 | RC造 |
| 建物階数 | 陸屋根5階建 |
| 総戸数 | 住居12戸+店舗8戸 |
| 設備 | 公営水道 公共下水 中部電力 都市ガス 駐車場無 |
| 建ぺい率 | 80% |
| 容積率 | 300% |
| 都市計画区域 | 市街化区域 |
| 用途地域 | 近隣商業地域 |
| 接道状況 | - |
| 再建築 | 可能 |
| 稼働状態 | 空室あり |
| 築年数 | 1970年 (築55年) |
| 建物面積 | 1,365.90 ㎡ (約 413 坪) |
| 坪単価(建物) | 36.3万円 / 坪 |
| 土地面積 | 392.28 ㎡ (約 119 坪) |
| 坪単価(土地) | 126.41万円 / 坪 |
| 土地権利 | 所有権 |
| 取引様態 | 仲介 |
| 情報更新日 | 2025/11/29 |
| 次回更新予定日 | 2025/12/29 |