建物外観/目の前がバス停の立地です|
建物外観/目の前がバス停の立地です
平面図(1-3F)|
平面図(1-3F)
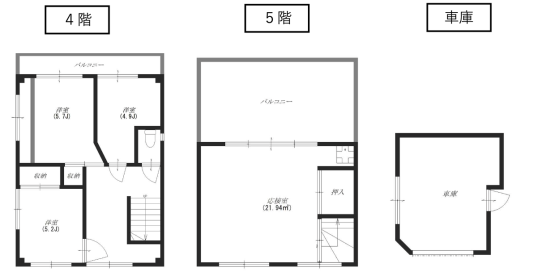
平面図(4-RF)|
平面図(4-RF)
新着 new ピックアップ pickup ソルドアウトsoldout

文京区関口1丁目事務所兼居宅

販売価格
23,500万円

一棟ビル 東京メトロ東西線『早稲田』駅 徒歩8分

東京都文京区 /1976年(築49年 / 188.36㎡ (1101.15万円/坪)

⬛︎地目
宅地
⬛︎建物種類
事務所・車庫・居宅
⬛︎法令上の制限
防火指定:防火地域
高度制限:39m高度地区
計画道路:事業済
その他:第二種文教地区
⬛︎評価額
土地:62,580,660円
建物:3,141,000円
⬛︎備考
・実測面積:70.79㎡
・民民境界確定済み(平成25年)
・大通り(新目白通り)沿いの居宅
・事務所利用も可能
・屋上/車庫付き
・徒歩10分圏内で3路線利用可能
・早稲田大学周辺、学生の多いエリア

文京区関口1丁目事務所兼居宅の詳細

No 152
物件名 文京区関口1丁目事務所兼居宅(一棟ビル 東京メトロ東西線『早稲田』駅 徒歩8分)
所在地 東京都文京区
沿線交通
東京メトロ東西線 早稲田 (徒歩8分)
東京メトロ有楽町線 江戸川橋 (徒歩8分)
東京さくらトラム(都電荒川線) 早稲田 (徒歩7分)
販売価格 23,500万円 想定利回り -
物件種別 一棟事務所ビル 想定年間収入 -
建物構造 その他 稼働状態 全空室
建物階数 鉄骨造 陸屋根5階建 築年数 1976年 (築49年)
総戸数 - 建物面積 188.36 ㎡ (約 57 坪)
設備 東京電力
東京ガス
公共水道
公共下水
坪単価(建物) 412.43万円 / 坪
建ぺい率 80% 土地面積 70.55 ㎡ (約 21 坪)
容積率 500% 坪単価(土地) 1101.15万円 / 坪
都市計画区域 市街化区域 土地権利 所有権
用途地域 商業地域 取引様態 仲介
接道状況 北側:公道(新目白通り)幅員約27m 接道間口約6.74m
再建築 可能
情報更新日 2025/11/11 次回更新予定日 2025/12/11
No 152
物件名 文京区関口1丁目事務所兼居宅(一棟ビル 東京メトロ東西線『早稲田』駅 徒歩8分)
所在地 東京都文京区
沿線交通
東京メトロ東西線 早稲田 (徒歩8分)
東京メトロ有楽町線 江戸川橋 (徒歩8分)
東京さくらトラム(都電荒川線) 早稲田 (徒歩7分)
販売価格 23,500万円
想定利回り -
想定年間収入 -
物件種別 一棟事務所ビル
建物構造 その他
建物階数 鉄骨造 陸屋根5階建
総戸数 -
設備 東京電力
東京ガス
公共水道
公共下水
建ぺい率 80%
容積率 500%
都市計画区域 市街化区域
用途地域 商業地域
接道状況 北側:公道(新目白通り)幅員約27m 接道間口約6.74m
再建築 可能
稼働状態 全空室
築年数 1976年 (築49年)
建物面積 188.36 ㎡ (約 57 坪)
坪単価(建物) 412.43万円 / 坪
土地面積 70.55 ㎡ (約 21 坪)
坪単価(土地) 1101.15万円 / 坪
土地権利 所有権
取引様態 仲介
情報更新日 2025/11/11
次回更新予定日 2025/12/11

最近見た物件

最近見た物件はありません