建物外観|
建物外観
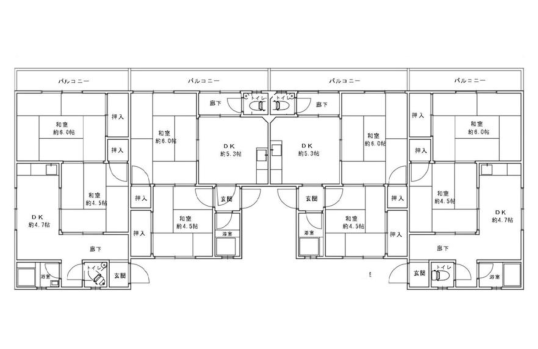
間取図|
間取図
新着 new ピックアップ pickup ソルドアウトsoldout

RHYTHM八尾

販売価格
10,000万円 (想定利回り7.4%)

一棟アパート JR大和路線『八尾』駅 徒歩12分

大阪府八尾市 /1969年(築57年 / 579.06㎡ (84.87万円/坪)

⬛︎地目
宅地
⬛︎地勢
平坦
⬛︎セットバック

⬛︎建物面積
1F:193.02㎡
2F:193.02㎡
3F:193.02㎡
⬛︎法令制限
準防火地域
⬛︎現況月額賃料収入
471,500円(満室想定:618,200円)
⬛︎引渡時期
即時
⬛︎備考
・告知事項あり:101号室・約4年前に入居者が室内で自然死(病死)、室内特殊清掃済
・101/302/304号室は改装後引渡予定
・101号室シロアリ被害箇所修繕予定
・現賃貸借契約引継ぎが条件です

RHYTHM八尾の詳細

No 195
物件名 RHYTHM八尾(一棟アパート JR大和路線『八尾』駅 徒歩12分)
所在地 大阪府八尾市
沿線交通
大和路線 八尾 (徒歩12分)
近鉄大阪線 近鉄八尾 (徒歩18分)
販売価格 10,000万円 想定利回り 7.4%
物件種別 一棟アパート 想定年間収入 7,418,400円
建物構造 RC造 稼働状態 空室あり
建物階数 陸屋根3階建 築年数 1969年 (築57年)
総戸数 12戸(2K×12) 建物面積 579.06 ㎡ (約 175 坪)
設備 公営水道
公共下水
都市ガス
駐車場有
坪単価(建物) 57.09万円 / 坪
建ぺい率 60% 土地面積 389.49 ㎡ (約 118 坪)
容積率 200% 坪単価(土地) 84.87万円 / 坪
都市計画区域 市街化区域 土地権利 所有権
用途地域 第一種住居地域 取引様態 仲介
接道状況 北側:私道(幅員約4m・接道接面約26.4m)/東側:私道(幅員約4.2m・接道接面約13.8m)/南側:私道(幅員約4.7m・接道接面約22.3m)
再建築 可能
情報更新日 2026/01/22 次回更新予定日 2026/02/22
No 195
物件名 RHYTHM八尾(一棟アパート JR大和路線『八尾』駅 徒歩12分)
所在地 大阪府八尾市
沿線交通
大和路線 八尾 (徒歩12分)
近鉄大阪線 近鉄八尾 (徒歩18分)
販売価格 10,000万円
想定利回り 7.4%
想定年間収入 7,418,400円
物件種別 一棟アパート
建物構造 RC造
建物階数 陸屋根3階建
総戸数 12戸(2K×12)
設備 公営水道
公共下水
都市ガス
駐車場有
建ぺい率 60%
容積率 200%
都市計画区域 市街化区域
用途地域 第一種住居地域
接道状況 北側:私道(幅員約4m・接道接面約26.4m)/東側:私道(幅員約4.2m・接道接面約13.8m)/南側:私道(幅員約4.7m・接道接面約22.3m)
再建築 可能
稼働状態 空室あり
築年数 1969年 (築57年)
建物面積 579.06 ㎡ (約 175 坪)
坪単価(建物) 57.09万円 / 坪
土地面積 389.49 ㎡ (約 118 坪)
坪単価(土地) 84.87万円 / 坪
土地権利 所有権
取引様態 仲介
情報更新日 2026/01/22
次回更新予定日 2026/02/22

最近見た物件

最近見た物件はありません