神奈川県藤沢市 /1980年(築46年 / 182.27㎡ (482.12万円/坪)
| No | 213 | ||
|---|---|---|---|
| 物件名 | 鵠沼橘ビル(一棟ビル JR東海道線・小田急江ノ島線『藤沢』駅 徒歩5分) | ||
| 所在地 | 神奈川県藤沢市 | ||
| 沿線交通 |
JR東海道本線(東京〜熱海) 藤沢 (徒歩5分)
|
||
| 販売価格 | 12,500万円 | 想定利回り | 4.6% |
| 物件種別 | 一棟商業ビル | 想定年間収入 | 5,856,000円 |
| 建物構造 | その他 | 稼働状態 | 空室あり |
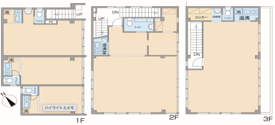
| 建物階数 | 鉄骨造 陸屋根3階建 | 築年数 | 1980年 (築46年) |
| 総戸数 | 5戸 | 建物面積 | 182.27 ㎡ (約 55 坪) |
| 設備 | 駐車場無 バイク置き場無 |
坪単価(建物) | 226.71万円 / 坪 |
| 建ぺい率 | 80% | 土地面積 | 85.71 ㎡ (約 26 坪) |
| 容積率 | 400% | 坪単価(土地) | 482.12万円 / 坪 |
| 都市計画区域 | 市街化区域 | 土地権利 | 所有権 |
| 用途地域 | 商業地域 | 取引様態 | 仲介 |
| 接道状況 | 南東側:公道(幅員約4m) | ||
| 再建築 | 可能 | ||
| 情報更新日 | 2026/03/20 | 次回更新予定日 | 2026/04/20 |
| No | 213 |
|---|---|
| 物件名 | 鵠沼橘ビル(一棟ビル JR東海道線・小田急江ノ島線『藤沢』駅 徒歩5分) |
| 所在地 | 神奈川県藤沢市 |
| 沿線交通 |
JR東海道本線(東京〜熱海) 藤沢 (徒歩5分)
|
| 販売価格 | 12,500万円 |
| 想定利回り | 4.6% |
| 想定年間収入 | 5,856,000円 |
| 物件種別 | 一棟商業ビル |
| 建物構造 | その他 |
| 建物階数 | 鉄骨造 陸屋根3階建 |
| 総戸数 | 5戸 |
| 設備 | 駐車場無 バイク置き場無 |
| 建ぺい率 | 80% |
| 容積率 | 400% |
| 都市計画区域 | 市街化区域 |
| 用途地域 | 商業地域 |
| 接道状況 | 南東側:公道(幅員約4m) |
| 再建築 | 可能 |
| 稼働状態 | 空室あり |
| 築年数 | 1980年 (築46年) |
| 建物面積 | 182.27 ㎡ (約 55 坪) |
| 坪単価(建物) | 226.71万円 / 坪 |
| 土地面積 | 85.71 ㎡ (約 26 坪) |
| 坪単価(土地) | 482.12万円 / 坪 |
| 土地権利 | 所有権 |
| 取引様態 | 仲介 |
| 情報更新日 | 2026/03/20 |
| 次回更新予定日 | 2026/04/20 |