建物外観(角地)/アクセス良好、3駅2路線利用可|
建物外観(角地)/アクセス良好、3駅2路線利用可
|
|
|
|
新着 new ピックアップ pickup ソルドアウトsoldout

越谷RSビル

販売価格
25,920万円 (想定利回り9%)

一棟店舗事務所ビル 東武伊勢崎線『越谷』・『新越谷』駅 徒歩12分 

埼玉県越谷市 /1981年(築45年 / 1179㎡ (125.7万円/坪)

⬛︎地目
宅地
⬛︎施工会社
株式会社共栄工務店
⬛︎防火地域
該当しない
⬛︎現況月間収入
1,943,917円/月(税込)
⬛︎引渡日
相談
⬛︎建築確認
昭和55年7月1日 第1308号
⬛︎検査済証
昭和56年4月10日 第4号
⬛︎近隣施設
コンビニ 徒歩約6分
スーパー 徒歩約6分
ホームセンター 徒歩約5分
ガソリンスタンド 徒歩約6分

越谷RSビルの詳細

No 215
物件名 越谷RSビル(一棟店舗事務所ビル 東武伊勢崎線『越谷』・『新越谷』駅 徒歩12分 )
所在地 埼玉県越谷市
沿線交通
JR武蔵野線 南越谷 (徒歩12分)
東武伊勢崎線 新越谷 (徒歩12分)
東武伊勢崎線 越谷 (徒歩12分)
販売価格 25,920万円 想定利回り 9%
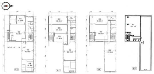
物件種別 一棟事務所ビル 想定年間収入 23,326,999円
建物構造 RC造 稼働状態 満室稼働中
建物階数 4階建 築年数 1981年 (築45年)
総戸数 14戸/駐車場11台 建物面積 1,179.00 ㎡ (約 357 坪)
設備 都市ガス
東京電力
エレベーター無
坪単価(建物) 72.68万円 / 坪
建ぺい率 60% 土地面積 681.67 ㎡ (約 206 坪)
容積率 200% 坪単価(土地) 125.7万円 / 坪
都市計画区域 市街化区域 土地権利 所有権
用途地域 第二種住居地域 取引様態 仲介
接道状況 南側:公道(幅員約4.1m)/西側:公道(幅員約16.4m)
再建築 可能
情報更新日 2026/03/27 次回更新予定日 2026/04/27
No 215
物件名 越谷RSビル(一棟店舗事務所ビル 東武伊勢崎線『越谷』・『新越谷』駅 徒歩12分 )
所在地 埼玉県越谷市
沿線交通
JR武蔵野線 南越谷 (徒歩12分)
東武伊勢崎線 新越谷 (徒歩12分)
東武伊勢崎線 越谷 (徒歩12分)
販売価格 25,920万円
想定利回り 9%
想定年間収入 23,326,999円
物件種別 一棟事務所ビル
建物構造 RC造
建物階数 4階建
総戸数 14戸/駐車場11台
設備 都市ガス
東京電力
エレベーター無
建ぺい率 60%
容積率 200%
都市計画区域 市街化区域
用途地域 第二種住居地域
接道状況 南側:公道(幅員約4.1m)/西側:公道(幅員約16.4m)
再建築 可能
稼働状態 満室稼働中
築年数 1981年 (築45年)
建物面積 1,179.00 ㎡ (約 357 坪)
坪単価(建物) 72.68万円 / 坪
土地面積 681.67 ㎡ (約 206 坪)
坪単価(土地) 125.7万円 / 坪
土地権利 所有権
取引様態 仲介
情報更新日 2026/03/27
次回更新予定日 2026/04/27

最近見た物件

最近見た物件はありません