建物外観|
建物外観
|
|
|
|
|
|
|
|
|
|
新着 new ピックアップ pickup ソルドアウトsoldout

上野公園一棟ビル

販売価格
19,800万円 (想定利回り11.5%)

一棟民泊ビル 東京メトロ千代田線『根津』駅 徒歩5分

東京都台東区 /1970年(築56年 / 180.32㎡ (1320.18万円/坪)

⬛︎土地面積
公簿:49.58㎡(14.99坪)
実測:65.25㎡(19.73坪)
⬛︎建物面積
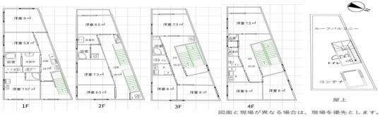
1F:44.67㎡
2F:46.31㎡
3F:44.67㎡
その他:44.67㎡
⬛︎法令上の制限
準防火地域
第三種高度地区(北側斜線あり)
第一種文教地区
⬛︎民泊売上実績
10月:180万円
11月:190万円
12月:200万円
売上上昇傾向
⬛︎備考
・1F店舗,事務所賃料収入:月額10万円
・司法書士売主指定

上野公園一棟ビルの詳細

No 222
物件名 上野公園一棟ビル(一棟民泊ビル 東京メトロ千代田線『根津』駅 徒歩5分)
所在地 東京都台東区
沿線交通
東京メトロ千代田線 根津 (徒歩5分)
販売価格 19,800万円 想定利回り 11.5%
物件種別 一棟事務所ビル 想定年間収入 22,800,000円
建物構造 その他 稼働状態 その他
建物階数 鉄骨造4階建 築年数 1970年 (築56年)
総戸数 - 建物面積 180.32 ㎡ (約 55 坪)
設備 東京電力
公営水道
都市ガス
公共下水
坪単価(建物) 362.99万円 / 坪
建ぺい率 60% 土地面積 49.58 ㎡ (約 15 坪)
容積率 300% 坪単価(土地) 1320.18万円 / 坪
都市計画区域 市街化区域 土地権利 所有権
用途地域 第一種低層住居専用地域 取引様態 仲介
接道状況 北東側:公道(幅員約8.8m)
再建築 可能
情報更新日 2026/04/23 次回更新予定日 2026/05/23
No 222
物件名 上野公園一棟ビル(一棟民泊ビル 東京メトロ千代田線『根津』駅 徒歩5分)
所在地 東京都台東区
沿線交通
東京メトロ千代田線 根津 (徒歩5分)
販売価格 19,800万円
想定利回り 11.5%
想定年間収入 22,800,000円
物件種別 一棟事務所ビル
建物構造 その他
建物階数 鉄骨造4階建
総戸数 -
設備 東京電力
公営水道
都市ガス
公共下水
建ぺい率 60%
容積率 300%
都市計画区域 市街化区域
用途地域 第一種低層住居専用地域
接道状況 北東側:公道(幅員約8.8m)
再建築 可能
稼働状態 その他
築年数 1970年 (築56年)
建物面積 180.32 ㎡ (約 55 坪)
坪単価(建物) 362.99万円 / 坪
土地面積 49.58 ㎡ (約 15 坪)
坪単価(土地) 1320.18万円 / 坪
土地権利 所有権
取引様態 仲介
情報更新日 2026/04/23
次回更新予定日 2026/05/23

最近見た物件

最近見た物件はありません