建物外観|
建物外観
屋上からは有馬の街並みを見渡すことができます|
屋上からは有馬の街並みを見渡すことができます
客室多数あります|
客室多数あります
|
|
|
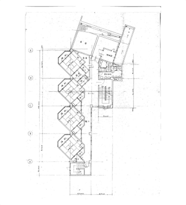
1階平面図|
1階平面図
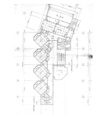
2階平面図|
2階平面図
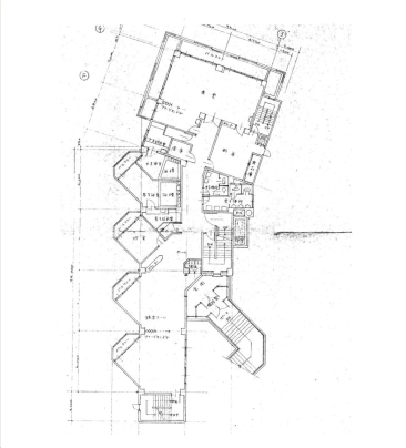
3階平面図|
3階平面図
4階平面図|
4階平面図
5階平面図|
5階平面図
新着 new ピックアップ pickup ソルドアウトsoldout

有馬温泉保養所

販売価格
25,000万円

一棟ビル 神鉄有馬線『有馬温泉』駅 徒歩13分

兵庫県神戸市北区 /1974年(築51年 / 1178.34㎡ (99.67万円/坪)

⬛︎地目
宅地
⬛︎法令上の制限
・第5高度地区
・防火指定なし
・宅地造成工事規制区域
・有馬地区景観形成市民協定
⬛︎施工会社
王子建設株式会社
⬛︎備考
・保養所・旅館・土地として利用可能
・諸条件ご相談ください

有馬温泉保養所の詳細

No 133
物件名 有馬温泉保養所(一棟ビル 神鉄有馬線『有馬温泉』駅 徒歩13分)
所在地 兵庫県神戸市北区
沿線交通
有馬線 有馬温泉 (徒歩13分)
販売価格 25,000万円 想定利回り -
物件種別 その他 想定年間収入 -
建物構造 RC造 稼働状態 全空室
建物階数 陸屋根5階建 築年数 1974年 (築51年)
総戸数 - 建物面積 1,178.34 ㎡ (約 356 坪)
設備 電気
都市ガス
上下水道
駐車場
坪単価(建物) 70.14万円 / 坪
建ぺい率 60% 土地面積 829.19 ㎡ (約 251 坪)
容積率 200% 坪単価(土地) 99.67万円 / 坪
都市計画区域 市街化区域 土地権利 所有権
用途地域 第二種住居地域 取引様態 仲介
接道状況 南東側:公道 幅員5m
再建築 可能
情報更新日 2025/10/13 次回更新予定日 2025/11/13
No 133
物件名 有馬温泉保養所(一棟ビル 神鉄有馬線『有馬温泉』駅 徒歩13分)
所在地 兵庫県神戸市北区
沿線交通
有馬線 有馬温泉 (徒歩13分)
販売価格 25,000万円
想定利回り -
想定年間収入 -
物件種別 その他
建物構造 RC造
建物階数 陸屋根5階建
総戸数 -
設備 電気
都市ガス
上下水道
駐車場
建ぺい率 60%
容積率 200%
都市計画区域 市街化区域
用途地域 第二種住居地域
接道状況 南東側:公道 幅員5m
再建築 可能
稼働状態 全空室
築年数 1974年 (築51年)
建物面積 1,178.34 ㎡ (約 356 坪)
坪単価(建物) 70.14万円 / 坪
土地面積 829.19 ㎡ (約 251 坪)
坪単価(土地) 99.67万円 / 坪
土地権利 所有権
取引様態 仲介
情報更新日 2025/10/13
次回更新予定日 2025/11/13

最近見た物件

最近見た物件はありません