建物外観|
建物外観
|
|
|
|
新着 new ピックアップ pickup ソルドアウトsoldout

SJS浜大津

販売価格
9,800万円 (想定利回り7.32%)

一棟マンション 京阪石山坂本線『三井寺』駅 徒歩3分

滋賀県大津市 /1981年(築44年 / 460.32㎡ (133.58万円/坪)

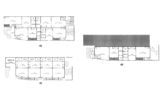
⬛︎建物面積
1F:187.61㎡
2F:176.36㎡
1F:96.35㎡
⬛︎私道(別途)
地番:8番16 
地積:45.58㎡
持分割合:1/11
⬛︎都市計画区
大津湖南都市計画区域
⬛︎景観区
商業地景観区
⬛︎眺望景観
大津都心地域
⬛︎屋外広告物規制
第3種許可地域
⬛︎埋蔵文化財包蔵地
大津城跡
⬛︎土地面積
公簿
⬛︎築年数(用途変更前の建物)
旧家屋番号8番4・・・昭和56年2月20日新築
同8番5・・・平成3年3月31日新築
⬛︎引渡
相談
⬛︎近隣施設
・大津長等郵便局 徒歩3分
・フレンドマート大津なかまち店 徒歩4分
・大津市立長等小学校 徒歩5分
・大津市立図書館 徒歩5分
・ミニストップ大津大門通店 徒歩6分
・大津赤十字病院 徒歩9分
⬛︎備考
パナソニックホームズとサブリース契約中のため、家賃免責・引渡猶予あり

SJS浜大津の詳細

No 173
物件名 SJS浜大津(一棟マンション 京阪石山坂本線『三井寺』駅 徒歩3分)
所在地 滋賀県大津市
沿線交通
琵琶湖線 大津 (徒歩18分)
京阪石山坂本線 三井寺 (徒歩3分)
京阪京津線 びわ湖浜大津 (徒歩8分)
販売価格 9,800万円 想定利回り 7.32%
物件種別 一棟マンション 想定年間収入 7,175,400円
建物構造 その他 稼働状態 満室稼働中
建物階数 鉄骨造3階建 築年数 1981年 (築44年)
総戸数 10戸 建物面積 460.32 ㎡ (約 139 坪)
設備 公営水道
オール電化
公共下水
坪単価(建物) 70.38万円 / 坪
建ぺい率 80% 土地面積 242.53 ㎡ (約 73 坪)
容積率 500% 坪単価(土地) 133.58万円 / 坪
都市計画区域 市街化区域 土地権利 所有権
用途地域 商業地域 取引様態 仲介
接道状況 東側:法第42条第1項第1号道路に約10.7m接面, 幅員約5.5m/南側:法第42条第2項道路に約2.1m接面, 幅員約2m
再建築 可能
情報更新日 2025/12/14 次回更新予定日 2026/01/14
No 173
物件名 SJS浜大津(一棟マンション 京阪石山坂本線『三井寺』駅 徒歩3分)
所在地 滋賀県大津市
沿線交通
琵琶湖線 大津 (徒歩18分)
京阪石山坂本線 三井寺 (徒歩3分)
京阪京津線 びわ湖浜大津 (徒歩8分)
販売価格 9,800万円
想定利回り 7.32%
想定年間収入 7,175,400円
物件種別 一棟マンション
建物構造 その他
建物階数 鉄骨造3階建
総戸数 10戸
設備 公営水道
オール電化
公共下水
建ぺい率 80%
容積率 500%
都市計画区域 市街化区域
用途地域 商業地域
接道状況 東側:法第42条第1項第1号道路に約10.7m接面, 幅員約5.5m/南側:法第42条第2項道路に約2.1m接面, 幅員約2m
再建築 可能
稼働状態 満室稼働中
築年数 1981年 (築44年)
建物面積 460.32 ㎡ (約 139 坪)
坪単価(建物) 70.38万円 / 坪
土地面積 242.53 ㎡ (約 73 坪)
坪単価(土地) 133.58万円 / 坪
土地権利 所有権
取引様態 仲介
情報更新日 2025/12/14
次回更新予定日 2026/01/14

最近見た物件

最近見た物件はありません