建物外観/リゾートホテルです|
建物外観/リゾートホテルです
|
|
|
|
|
|
|
|
|
|
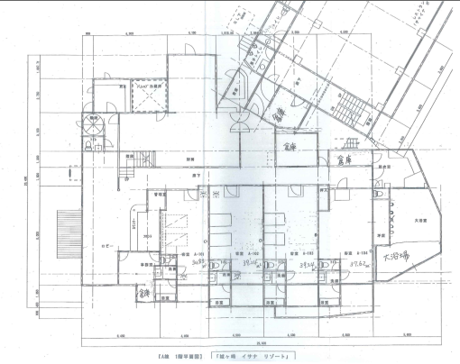
平面図/A棟1階|
平面図/A棟1階
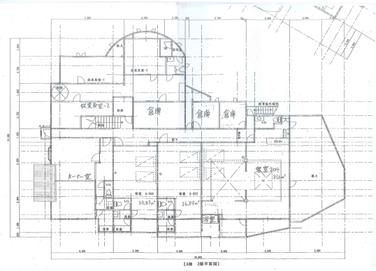
A棟2階|
A棟2階
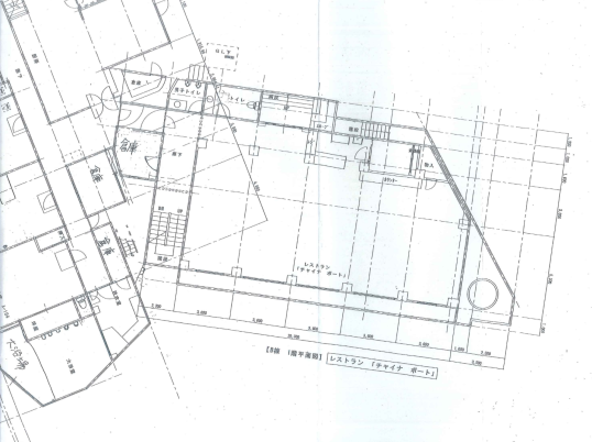
B棟1階|
B棟1階
B棟2階|
B棟2階
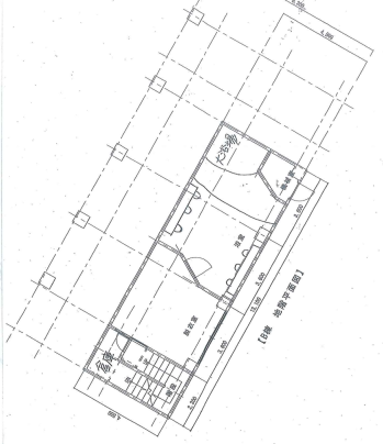
B棟地下階|
B棟地下階
新着 new ピックアップ pickup ソルドアウトsoldout

ISANA Resort

販売価格
28,000万円

リゾートホテル 伊豆急行線『城ヶ崎海岸』駅 徒歩23分

静岡県伊東市 /1970年(築55年 / 1158.75㎡ (72.95万円/坪)

⬛︎地目
宅地
⬛︎建物種類
旅館
⬛︎現況
所有者により旅館業運営中
⬛︎支出
固定資産税:調査中
管理費:なし
その他:約200,000円/月(温泉権)
⬛︎引渡時期
2026年1月以降を希望(詳細要相談)
⬛︎備考
・検査済証:無
・建築確認済証:無
・引渡形状:空渡し
・売主の契約不適合免責
・公簿売買
・境界非明示、測量は買主負担により行うこと

ISANA Resortの詳細

No 167
物件名 ISANA Resort(リゾートホテル 伊豆急行線『城ヶ崎海岸』駅 徒歩23分)
所在地 静岡県伊東市
沿線交通
伊豆急行線 城ヶ崎海岸 (徒歩23分)
販売価格 28,000万円 想定利回り -
物件種別 ホテル 想定年間収入 -
建物構造 RC造 稼働状態 その他
建物階数 木造・鉄筋コンクリート造 地下1階地上2階建 築年数 1970年 (築55年)
総戸数 客室×10, 大浴場×2, レストラン, 調理場, 事務所, 従業員室, オーナー室, 倉庫等 建物面積 1,158.75 ㎡ (約 351 坪)
設備 - 坪単価(建物) 79.88万円 / 坪
建ぺい率 60% 土地面積 1,268.90 ㎡ (約 384 坪)
容積率 200% 坪単価(土地) 72.95万円 / 坪
都市計画区域 非線引き区域 土地権利 所有権
用途地域 - 取引様態 仲介
接道状況 西側:県道 幅員7.8m/東側:市道 幅員6m
再建築 可能
情報更新日 2025/11/29 次回更新予定日 2025/12/29
No 167
物件名 ISANA Resort(リゾートホテル 伊豆急行線『城ヶ崎海岸』駅 徒歩23分)
所在地 静岡県伊東市
沿線交通
伊豆急行線 城ヶ崎海岸 (徒歩23分)
販売価格 28,000万円
想定利回り -
想定年間収入 -
物件種別 ホテル
建物構造 RC造
建物階数 木造・鉄筋コンクリート造 地下1階地上2階建
総戸数 客室×10, 大浴場×2, レストラン, 調理場, 事務所, 従業員室, オーナー室, 倉庫等
設備 -
建ぺい率 60%
容積率 200%
都市計画区域 非線引き区域
用途地域 -
接道状況 西側:県道 幅員7.8m/東側:市道 幅員6m
再建築 可能
稼働状態 その他
築年数 1970年 (築55年)
建物面積 1,158.75 ㎡ (約 351 坪)
坪単価(建物) 79.88万円 / 坪
土地面積 1,268.90 ㎡ (約 384 坪)
坪単価(土地) 72.95万円 / 坪
土地権利 所有権
取引様態 仲介
情報更新日 2025/11/29
次回更新予定日 2025/12/29

最近見た物件

最近見た物件はありません