企業研修所の建物です|
企業研修所の建物です
建物外観|
建物外観
研修室|
研修室
大浴場|
大浴場
宿泊室|
宿泊室
宿泊室|
宿泊室
ダイニング|
ダイニング
広大な敷地の中にございます|
広大な敷地の中にございます
水回り|
水回り
水回り|
水回り
水回り|
水回り
キッチン|
キッチン
前面道路|
前面道路
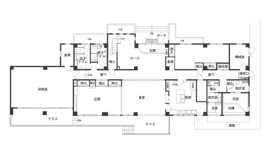
1F間取図|
1F間取図
2F間取図|
2F間取図
周辺地図|
周辺地図
周辺地図|
周辺地図

千葉研修所

販売価格
16,000万円

一棟別荘 JR外房線『誉田』駅 バス15分

千葉県長柄町 /1981年(築45年 / 498.57㎡ (9.93万円/坪)

⬛︎地目
宅地
⬛︎都市計画
城外
⬛︎用途地域
定めなし
⬛︎設備備考
・2階増築部分のユニットバスに雨漏りあり(修復不能)
・浴室脱衣所の床(根太)に一部腐食あり
・空調リモコンの表示が一部飛んでいる(動作はしている)
・トイレの流れが全体的に悪い
・現況有姿にて引渡
⬛︎引渡
相談
⬛︎その他注意事項
・本物件は事業利用不可(民泊含む)となっており、用途が個人別荘・法人福利厚生施設に限られます。
・最低敷地面積の定めあり、300坪以下への区分けは不可。
・長柄ふる里村建築協定に基づく建築制限を受けます(建蔽率20%、容積率40%、建築物の高さ制限は2階建以下、高さ9m以下とする、1区画の敷地規模は992㎡(300坪)以上とする等の建築制限がございます)。
・対象不動産は都市計画区域外につき、都市計画法による建築制限は受けませんが、長柄町役場建設環境課では、建蔽率70%、容積率400%をお願いしているとのことです。
・長柄ふる里村内は新たに営業に供する目的の建築物は建築できません。住居専用建物もしくは法人が社員の福利厚生のために利用する施設ならびにこれと一体で建築する車庫等に制限されます。
・対象不動産の所有者は長柄ふる里村自治会への加入が必要となり、対象不動産の自治会費は228,000円/年となります。
・敷地内に送電のため東京電力の電柱が存します。電柱設置に係る土地使用料として東京電力より3年ごとに31,500円が支払われます。
・未登記の建物(平成4年築、木造、休憩室)が売買対象として含まれ固定資産税の課税対象となっています。
・対象不動産2階部分に未登記の増築箇所(ユニットバス)があります。当該箇所に雨漏りがあります。
・当該土地以外に
465番26 地積:36㎡ 地目:雑種地 持分4分の2
465番24 地積:47㎡ 地目:公衆用道路 持分6分の2
465番6 地積:162㎡ 地目:公衆用道路 持分6分の2
が売買対象に含まれます。

千葉研修所の詳細

No 82
物件名 千葉研修所(一棟別荘 JR外房線『誉田』駅 バス15分)
所在地 千葉県長柄町
沿線交通
JR外房線 誉田 (徒歩150分 バス15分)
販売価格 16,000万円 想定利回り -
物件種別 その他 想定年間収入 -
建物構造 RC造 稼働状態 その他
建物階数 ルーフイングぶき2階建 築年数 1981年 (築45年)
総戸数 - 建物面積 498.57 ㎡ (約 151 坪)
設備 研修室
共同浴場
共同トイレ
東京電力
プロパンガス
公営水道
集中浄化槽
坪単価(建物) 106.09万円 / 坪
建ぺい率 20% 土地面積 5,325.82 ㎡ (約 1611 坪)
容積率 40% 坪単価(土地) 9.93万円 / 坪
都市計画区域 - 土地権利 所有権
用途地域 - 取引様態 仲介
接道状況 三方(北側:公道 長柄町道第1121号 幅員6m/東側:公道 長柄町道第1132号 幅員4m/西側:私道 幅員4.5m)
再建築 可能
情報更新日 2026/03/30 次回更新予定日 2026/04/30
No 82
物件名 千葉研修所(一棟別荘 JR外房線『誉田』駅 バス15分)
所在地 千葉県長柄町
沿線交通
JR外房線 誉田 (徒歩150分 バス15分)
販売価格 16,000万円
想定利回り -
想定年間収入 -
物件種別 その他
建物構造 RC造
建物階数 ルーフイングぶき2階建
総戸数 -
設備 研修室
共同浴場
共同トイレ
東京電力
プロパンガス
公営水道
集中浄化槽
建ぺい率 20%
容積率 40%
都市計画区域 -
用途地域 -
接道状況 三方(北側:公道 長柄町道第1121号 幅員6m/東側:公道 長柄町道第1132号 幅員4m/西側:私道 幅員4.5m)
再建築 可能
稼働状態 その他
築年数 1981年 (築45年)
建物面積 498.57 ㎡ (約 151 坪)
坪単価(建物) 106.09万円 / 坪
土地面積 5,325.82 ㎡ (約 1611 坪)
坪単価(土地) 9.93万円 / 坪
土地権利 所有権
取引様態 仲介
情報更新日 2026/03/30
次回更新予定日 2026/04/30

最近見た物件

最近見た物件はありません