東京都渋谷区 /1969年(築57年 / 236.64㎡ (728.9万円/坪)
| No | 128 | ||
|---|---|---|---|
| 物件名 | 渋谷区本町5丁目マンション(一棟マンション 京王線『幡ヶ谷』駅 徒歩11分) | ||
| 所在地 | 東京都渋谷区 | ||
| 沿線交通 |
京王新線 幡ヶ谷 (徒歩11分)
|
||
| 販売価格 | 18,700万円 | 想定利回り | 6% |
| 物件種別 | 一棟マンション | 想定年間収入 | 11,256,000円 |
| 建物構造 | RC造 | 稼働状態 | 満室稼働中 |
| 建物階数 | 4階建 | 築年数 | 1969年 (築57年) |
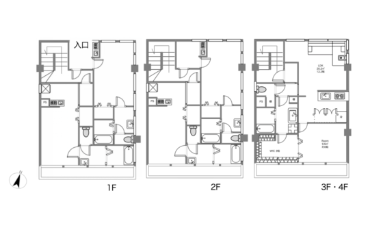
| 総戸数 | 6戸(1/2F:1R×2, 3/4F:1LDK×1, ルーフバルコニー, 古屋あり) | 建物面積 | 236.64 ㎡ (約 72 坪) |
| 設備 | - | 坪単価(建物) | 261.23万円 / 坪 |
| 建ぺい率 | 80% | 土地面積 | 84.81 ㎡ (約 26 坪) |
| 容積率 | 300% | 坪単価(土地) | 728.9万円 / 坪 |
| 都市計画区域 | 市街化区域 | 土地権利 | 所有権 |
| 用途地域 | 近隣商業地域 | 取引様態 | 仲介 |
| 接道状況 | 角地 公道:幅員9.1m/私道:幅員3.42m | ||
| 再建築 | 可能 | ||
| 情報更新日 | 2026/03/31 | 次回更新予定日 | 2026/05/01 |
| No | 128 |
|---|---|
| 物件名 | 渋谷区本町5丁目マンション(一棟マンション 京王線『幡ヶ谷』駅 徒歩11分) |
| 所在地 | 東京都渋谷区 |
| 沿線交通 |
京王新線 幡ヶ谷 (徒歩11分)
|
| 販売価格 | 18,700万円 |
| 想定利回り | 6% |
| 想定年間収入 | 11,256,000円 |
| 物件種別 | 一棟マンション |
| 建物構造 | RC造 |
| 建物階数 | 4階建 |
| 総戸数 | 6戸(1/2F:1R×2, 3/4F:1LDK×1, ルーフバルコニー, 古屋あり) |
| 設備 | - |
| 建ぺい率 | 80% |
| 容積率 | 300% |
| 都市計画区域 | 市街化区域 |
| 用途地域 | 近隣商業地域 |
| 接道状況 | 角地 公道:幅員9.1m/私道:幅員3.42m |
| 再建築 | 可能 |
| 稼働状態 | 満室稼働中 |
| 築年数 | 1969年 (築57年) |
| 建物面積 | 236.64 ㎡ (約 72 坪) |
| 坪単価(建物) | 261.23万円 / 坪 |
| 土地面積 | 84.81 ㎡ (約 26 坪) |
| 坪単価(土地) | 728.9万円 / 坪 |
| 土地権利 | 所有権 |
| 取引様態 | 仲介 |
| 情報更新日 | 2026/03/31 |
| 次回更新予定日 | 2026/05/01 |